cassandra
.moeri
cassandra.moeri
+1 (767) 265-66-76
target="_blank"

Harris Residence

Client: D. Harris
Location: St. Kitts

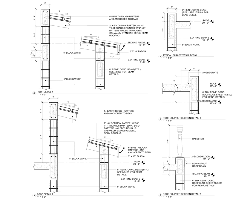
Roof

Roof drains, gutters, and grates are only a few fittings crucial to completing a roof design. The location of these fittings determines the point of egress for surface runoff. Without a proper layout for these features, a building can transform from looking brand new to looking dilapidated in an alarmingly short amount of time.

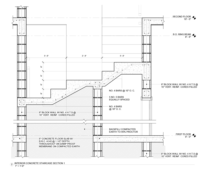
Stair

As with the roof, a detailed staircase section makes the builder’s job a lot easier. He can see in full detail exactly how each piece of steel interacts with another within the poured staircase slab.

Septic

The design and layout of the waste treatment for a single dwelling is sometimes left to the contractor building it to do so when the need arises. As an architect, I prefer a more hands-on and thorough approach; making the necessary calculations to determine the size and layout needed for a given septic tank.