cassandra
.moeri
cassandra.moeri
+1 (767) 265-66-76

Newton Ground

Client: D. Harris
Location: St. Kitts

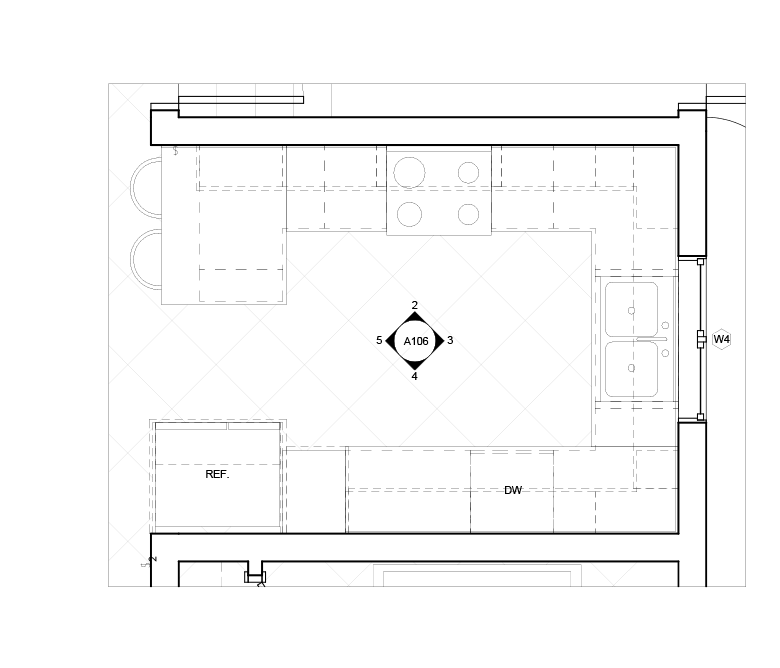
The Layout

Having designed kitchen layouts for four years of my career as a designer, I know all too well the importance of a practical yet symmetrical layout. A tight space is no excuse for lackluster design. I believe that every space deserves the right amount of attention to make it work.

The Aesthetic

Color balance makes a huge difference in how a space is received by the onlooker. To break up the monotony of a sterile all-white kitchen, I used a bold red as an accent color to draw attention to this quaint space without overwhelming it.

Function

Having worked on a project for which contractors rely heavily on interior elevations such as this one, I have a newfound appreciation for a simple yet functional layout. Electricians and plumbers specifically rely on these drawings for placing their pipes and conduits. So the cleaner the layout is, the less back and forth there will be between myself as the architect and the contractors laying out the spaces on site.