cassandra
.moeri
cassandra.moeri
+1 (767) 265-66-76

Opal House

Client: O. Williams
Location: Cayman Islands

Facade

Having been granted free reign to design the facade of this house, I decided to incorporate different finishes. From brick, to wood, to the pure white paint finish that separates them; this facade was meant to draw attention using an array of modern finishes.

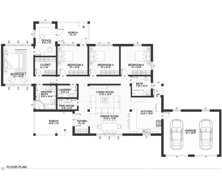
Layout

The challenge of accounting for so many rooms to be compacted into such a small area was one I readily accepted. Four bedrooms, two-and-a-half baths; and an open floor plan of public spaces.

Lighting

Lighting is vital to setting the right mood in a home. Not only should it be adequate, but also well placed; in a manner that avoids disruption.

Windows

The size and placement of openings is also crucial. Adequately-sized windows flanking rooms such as the dining room and bedroom make a world of difference in bathing a space in natural light.